• Home
  • Strativari
  • Come lavoriamo
  • I Progetti
  • Eventi e Fiere
  • Contatti
  • Home
  • Strativari
  • Come lavoriamo
  • I Progetti
  • Eventi e Fiere
  • Contatti

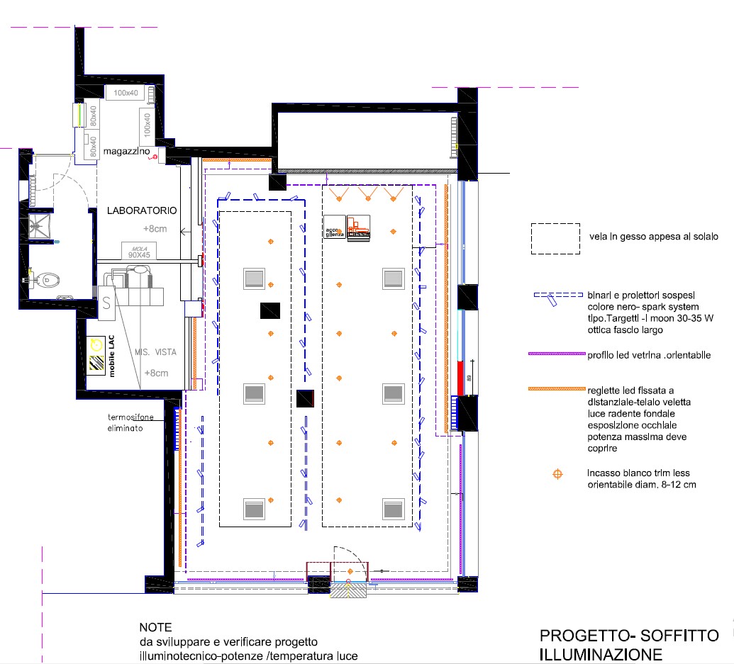
VisionOttica Madama Cristina

La fusione di stili vintage e contemporanei ha definito il nuovo look di questo negozio di ottica, con arredi moderni accostati a dettagli retrò, creando un’atmosfera alla moda che si distingue per la sua originalità.

Location:

Torino
Progetto successivo
Il tuo store in ottica diversa
  • Via Luigi Goia 102 Mortara (PV)
  • +39 347 175 8288
  • info@strativariopticaldesign.com
Facebook Instagram

© Copyright Strativari Optical Design – Linea Contract Group SRL – P.IVA  02740560186

Privacy Policy Cookie Policy

Powered by B2GO Solutions